RESIDENTIAL PLOT WITH ARCHITECTURAL PLANS FOR SALE IN LOFOU

€60,000
Reference
#GE5368
Cartegory
PLOT-LAND
Sub-Category
PLOT
City
Limassol
Area
Lofou
Plot Area
400 m2
Building factor
60 %
Coverage factor
35 %
REQUEST A VIEWING

Property Features

  • Access Road
  • Electricity
  • Mountain view
  • Quiet location
  • Water

Property Description

A fantastic opportunity to own a beautiful, regularly shaped residential plot in the charming village of Lofou. This 400 sq. m field enjoys breathtaking panoramic views of the village and surrounding mountains, offering the perfect setting for a peaceful lifestyle.


• Building Density: 60%
• Coverage: 35%
• Floors: Up to 2
• Maximum Height: 8.3 meters

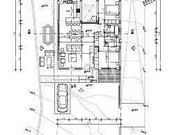
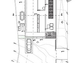
The owner has already prepared architectural plans for a modern three-bedroom residence, including two bathrooms, a landscaped garden, and a private swimming pool, making it ideal for either a holiday home or a permanent residence.
Lofou Village is conveniently located just 30 minutes from Limassol city centre and close to international schools, i.e., Heritage, Pascal, and Island School, with only a 15-minute drive from Lofou without traffic – combining tranquillity with accessibility.

Like this property? Get in touch now!

+357 25 319 666

Mortgage Calculator

* All properties displayed at www.galleryestate.net are subject to availability. eaGallery Estate makes no warranties, undertakings or representations with respect to the content of the website (such as accuracy, quality, comprehensiveness etc. of such content) and no liability or responsibility of any kind whatsoever is accepted by eaGalley Estate concerning the information contained in this website.

Do you want to submit a property request?